Zurück zur Suche
Kauf
1160 Wien, Erdbrustgasse, Wien

Stadtdomizil mit Grünblick

641.300 €
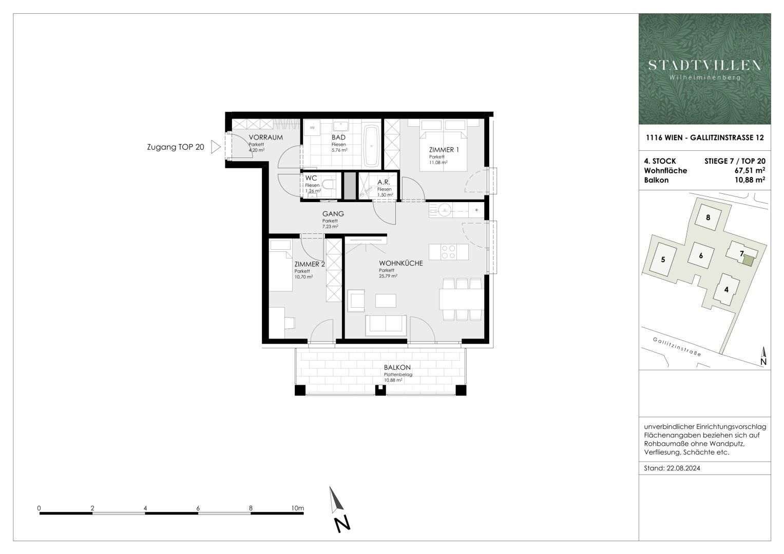
Top 20
Wohnung · Wohnung
Objekt auf einen Blick
Einheit Top 20
Typ Wohnung · Wohnung
Zimmer 3
Wohnfläche 67,51 m²
Verfügbar Winter 2026
Makler-ID 76661 Immosearch-ID 009087
Teil dieses Projekts

Hauptprojekt: Stadtvillen im Wilhelminen-Cottage

1160 Wien, Erdbrustgasse, Wien
Zum Hauptprojekt
Projektstatus Planung
Aktive Einheiten 41
Preisrahmen 289.900 bis 1.750.000

Preise

Kaufpreis 641.300 €
Maklerprovision Provisionsfrei für den Käufer!
Grunderwerbsteuer 3.5%
Grundbucheintragungsgebühr 1.1%

Immobiliendetails

VermarktungsartKauf
ObjektartWohnung
UnterobjektartWohnung
Zimmer3
Wohnfläche67,51 m²
Ort1160 Wien, Erdbrustgasse, Wien
Verfügbar abWinter 2026
StatusAktiv

Weitere Angaben

Zustand Erstbezug
Alter Neubau
Bad Wanne
Boden Fliesen, Parkett
Befeuerung Luftwp
Fahrstuhl Personenaufzug
Badezimmer 1
Separate WC 1
Balkone 1
Balkon/Terrasse 10.88
Fahrradraum Ja
Anzahl abstellraum 1
Anzahl keller 1
Balkon flaeche 10.88
Etage 4. Etage / 4. Etage
Kaufpreis 641300
Kaufpreisbrutto 641300
Politischer bezirk Wien 16., Ottakring
Stiege 7
Sub objektart id 45
Sub objektart name Wohnung
Wohnungsnr 20

Beschreibung