Zurück zur Suche
Kauf
1160 Wien, Erdbrustgasse, Wien

Privatresidenzen in Parkvillen

435.000 €
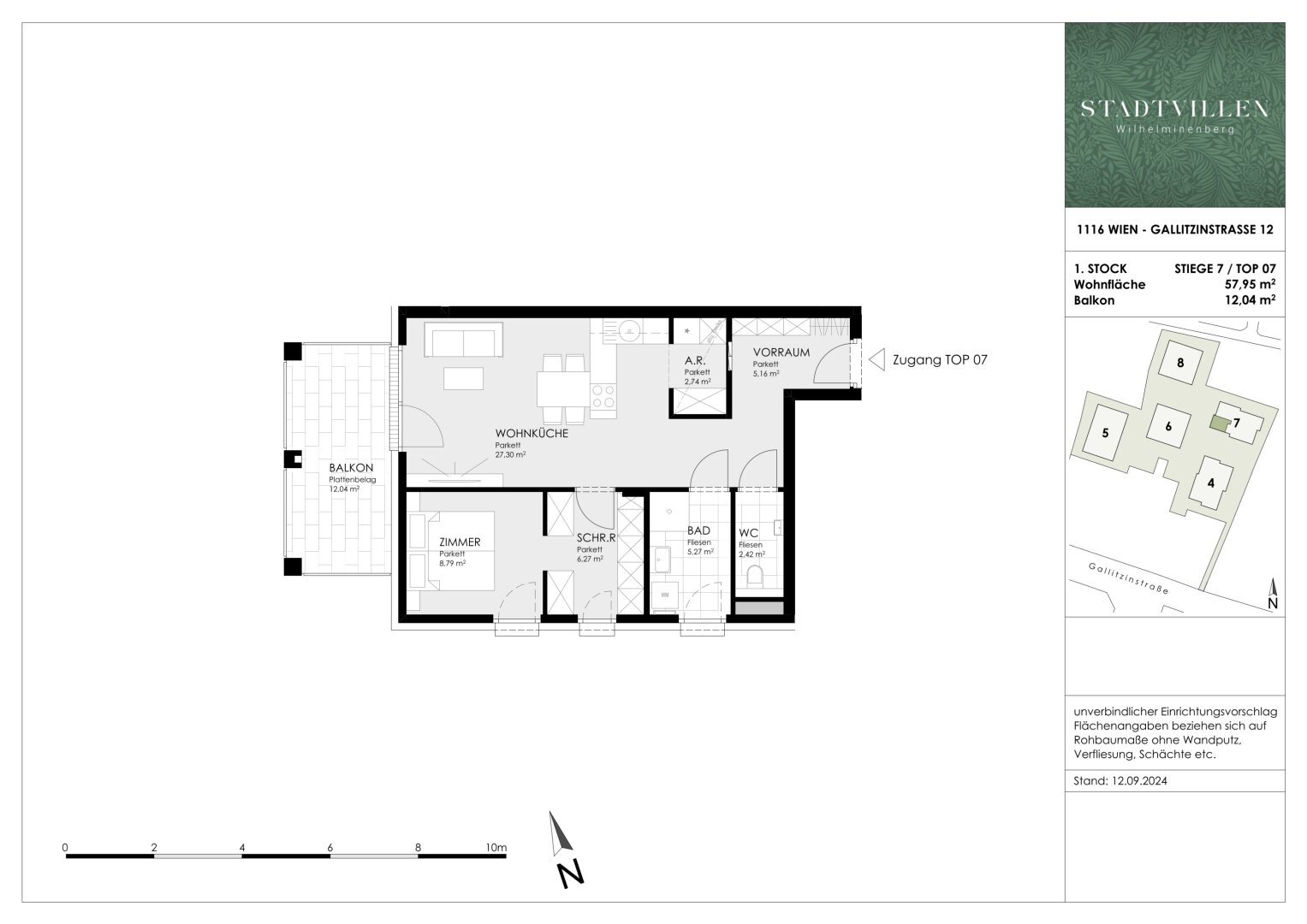
Top 7
Wohnung · Wohnung
Objekt auf einen Blick
Einheit Top 7
Typ Wohnung · Wohnung
Zimmer 2
Wohnfläche 58,07 m²
Verfügbar Winter 2026
Makler-ID 76648 Immosearch-ID 009097
Teil dieses Projekts

Hauptprojekt: Stadtvillen im Wilhelminen-Cottage

1160 Wien, Erdbrustgasse, Wien
Zum Hauptprojekt
Projektstatus Planung
Aktive Einheiten 41
Preisrahmen 289.900 bis 1.750.000

Preise

Kaufpreis 435.000 €
Maklerprovision Provisionsfrei für den Käufer!
Grunderwerbsteuer 3.5%
Grundbucheintragungsgebühr 1.1%

Immobiliendetails

VermarktungsartKauf
ObjektartWohnung
UnterobjektartWohnung
Zimmer2
Wohnfläche58,07 m²
Ort1160 Wien, Erdbrustgasse, Wien
Verfügbar abWinter 2026
StatusAktiv

Weitere Angaben

Zustand Erstbezug
Alter Neubau
Bad Dusche, Fenster
Boden Fliesen, Parkett
Befeuerung Luftwp
Fahrstuhl Personenaufzug
Badezimmer 1
Separate WC 1
Balkone 1
Balkon/Terrasse 12.04
Fahrradraum Ja
Anzahl abstellraum 1
Anzahl keller 1
Balkon flaeche 12.04
Etage 1. Etage / 1. Etage
Immocard id AT01008850
Kaufpreis 435000
Kaufpreisbrutto 435000
Politischer bezirk Wien 16., Ottakring
Stiege 7
Sub objektart id 45
Sub objektart name Wohnung
Wohnungsnr 7

Beschreibung