Zurück zur Suche
Reserviert
1160 Wien, Erdbrustgasse, Wien

Privatresidenzen in Parkvillen

383.500 €
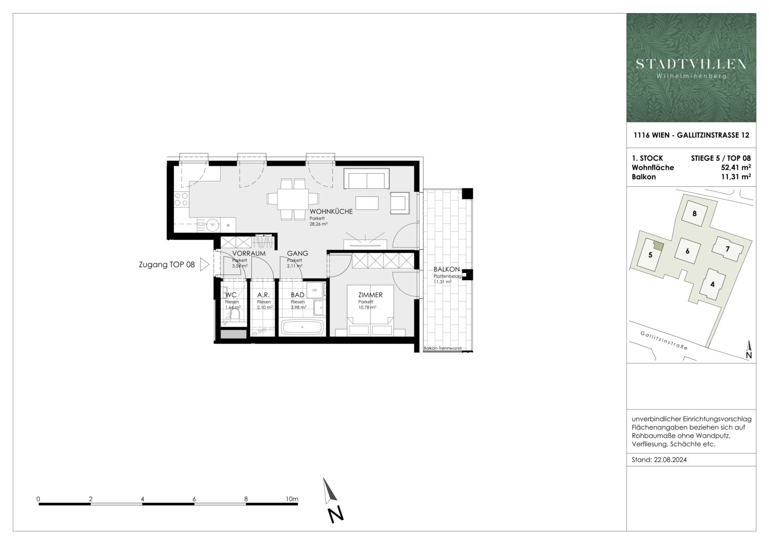
Top 8
Wohnung · Wohnung
Objekt auf einen Blick
Einheit Top 8
Typ Wohnung · Wohnung
Zimmer 2
Wohnfläche 52,41 m²
Verfügbar Winter 2026
Makler-ID 76596 Immosearch-ID 009130
Teil dieses Projekts

Hauptprojekt: Stadtvillen im Wilhelminen-Cottage

1160 Wien, Erdbrustgasse, Wien
Zum Hauptprojekt
Projektstatus Planung
Aktive Einheiten 41
Preisrahmen 289.900 bis 1.750.000

Preise

Kaufpreis 383.500 €
Maklerprovision Provisionsfrei für den Käufer!
Grunderwerbsteuer 3.5%
Grundbucheintragungsgebühr 1.1%

Immobiliendetails

VermarktungsartKauf
ObjektartWohnung
UnterobjektartWohnung
Zimmer2
Wohnfläche52,41 m²
Ort1160 Wien, Erdbrustgasse, Wien
Verfügbar abWinter 2026
StatusReserviert

Weitere Angaben

Zustand Erstbezug
Alter Neubau
Bad Wanne
Boden Fliesen, Parkett
Befeuerung Luftwp
Fahrstuhl Personenaufzug
Badezimmer 1
Separate WC 1
Balkone 1
Balkon/Terrasse 11.31
Fahrradraum Ja
Anzahl abstellraum 1
Anzahl keller 1
Balkon flaeche 11.31
Etage 1. Etage / 1. Etage
Immocard id AT01008850
Kaufpreis 383500
Kaufpreisbrutto 383500
Politischer bezirk Wien 16., Ottakring
Stiege 5
Sub objektart id 45
Sub objektart name Wohnung
Wohnungsnr 8

Beschreibung