Zurück zur Suche
Kauf
1160 Wien, Erdbrustgasse, Wien

Parkvillen im Wilhelminen-Cottage

357.000 €
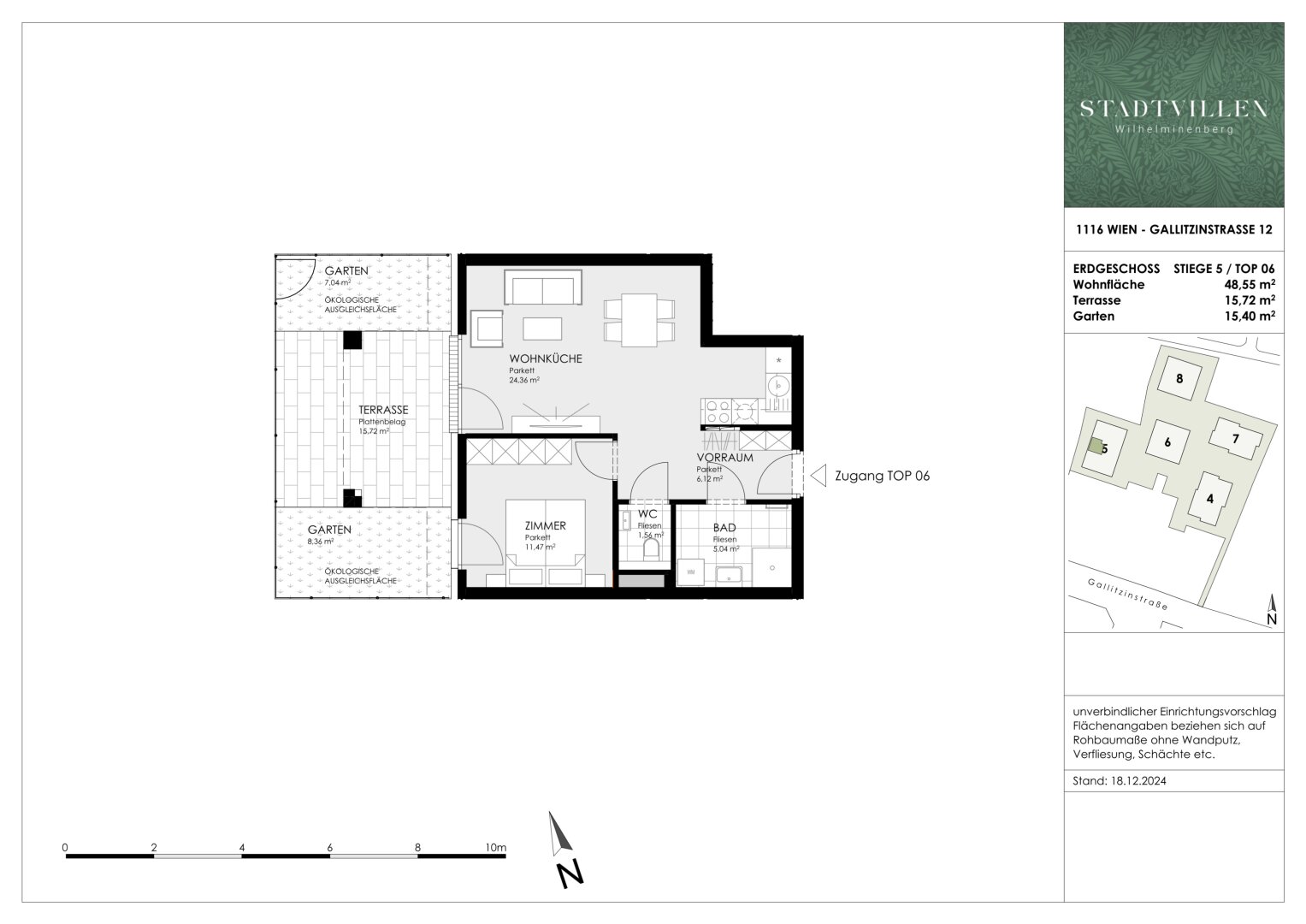
Top 6
Wohnung · Wohnung
Objekt auf einen Blick
Einheit Top 6
Typ Wohnung · Wohnung
Zimmer 2
Wohnfläche 48,55 m²
Verfügbar Winter 2026
Makler-ID 76594 Immosearch-ID 009132
Teil dieses Projekts

Hauptprojekt: Stadtvillen im Wilhelminen-Cottage

1160 Wien, Erdbrustgasse, Wien
Zum Hauptprojekt
Projektstatus Planung
Aktive Einheiten 41
Preisrahmen 289.900 bis 1.750.000

Preise

Kaufpreis 357.000 €
Maklerprovision Provisionsfrei für den Käufer!
Grunderwerbsteuer 3.5%
Grundbucheintragungsgebühr 1.1%

Immobiliendetails

VermarktungsartKauf
ObjektartWohnung
UnterobjektartWohnung
Zimmer2
Wohnfläche48,55 m²
Ort1160 Wien, Erdbrustgasse, Wien
Verfügbar abWinter 2026
StatusAktiv

Weitere Angaben

Zustand Erstbezug
Alter Neubau
Bad Dusche
Boden Fliesen, Parkett
Heizungsart Fußbodenheizung
Befeuerung Luftwp
Fahrstuhl Personenaufzug
Badezimmer 1
Separate WC 1
Balkon/Terrasse 15.72
Gartenfläche 15.4
Fahrradraum Ja
Anzahl garten 1
Anzahl keller 1
Etage EG / EG
Immocard id AT01008850
Kaufpreis 357000
Kaufpreisbrutto 357000
Politischer bezirk Wien 16., Ottakring
Stiege 5
Sub objektart id 45
Sub objektart name Wohnung
Terrassen flaeche 15.72
Wohnungsnr 6

Beschreibung