Zurück zur Suche
Miete
1130 Wien,Hietzing, Wien

TOP Lage: Moderne Büroflächen im Zentrum von Hietzing

5.031,02 €
Büro / Praxis · Bürofläche
Objekt auf einen Blick
Typ Büro / Praxis · Bürofläche
Verfügbar sofort
Makler-ID 1609/47003 Immosearch-ID 018332

Preise

Miete 5.031,02 €
Gesamtmiete netto 5.031,02 €
Gesamtbelastung netto 5.579,17 €
Summe Miete netto 4.498,20 €
Betriebskosten netto 532,82 €
Heizkosten netto 548,15 €
Maklerprovision 3 Bruttomonatsmieten zzgl. 20% USt.

Immobiliendetails

VermarktungsartMiete
ObjektartBüro / Praxis
UnterobjektartBürofläche
Ort1130 Wien,Hietzing, Wien
Verfügbar absofort
StatusAktiv

Weitere Angaben

Zustand Gepflegt
Erschließung Voll erschlossen
Boden Linoleum
Befeuerung Luftwp
Fahrstuhl Personenaufzug
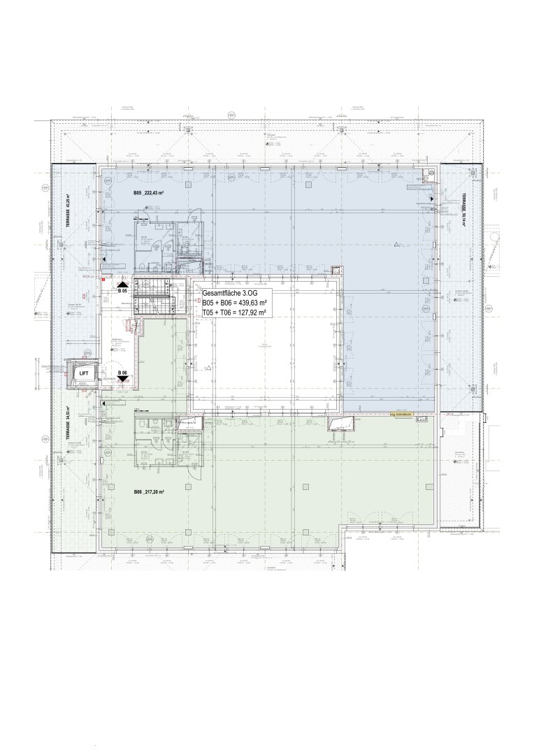
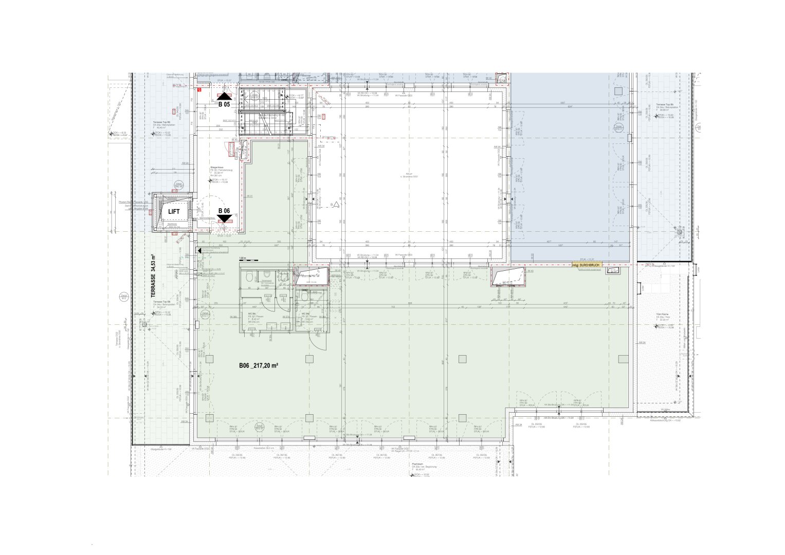
Balkon/Terrasse 34.53
Etage 3. Etage
Politischer bezirk Wien 13., Hietzing
Sub objektart id 61
Sub objektart name Bürofläche
Terrassen flaeche 34.53

Beschreibung