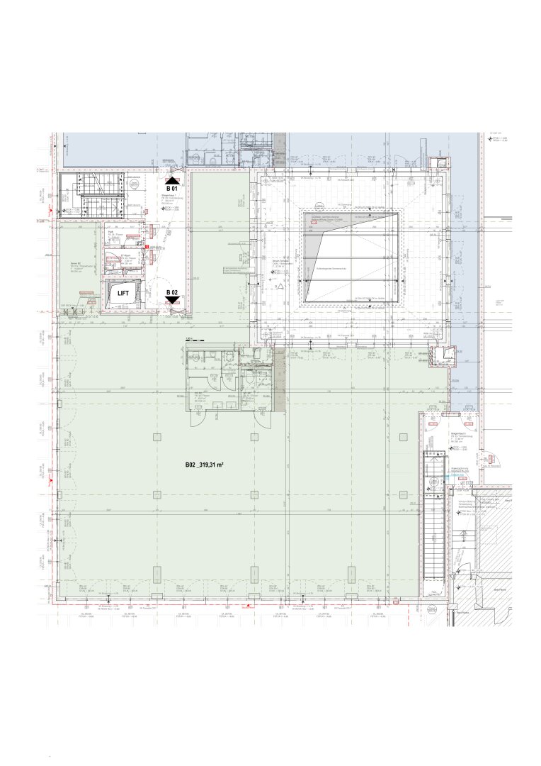
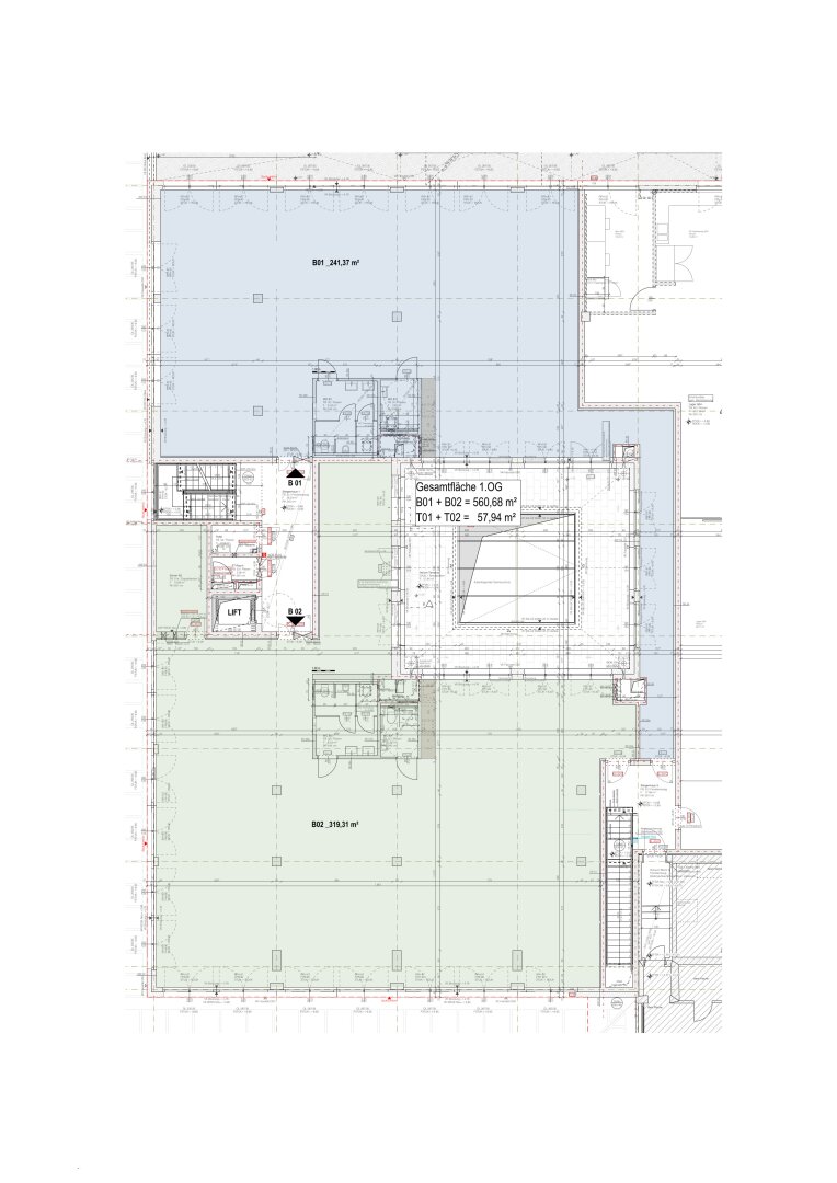
Entdecken Sie Ihr neues Büro- oder Praxisdomizil im Herzen des 13. Bezirks in Wien! Diese attraktive Bürofläche im 1.Obergeschoss im vorderen Bauteil des Ekazent bietet Ihnen ideale Voraussetzungen, um Ihr Unternehmen oder Ihre Praxis professionell und komfortabel zu präsentieren.
Die Räumlichkeiten bieten eine Standardausstattung, die nach eigenen Vorstellungen angepasst werden können. Ein außenliegender Sonnenschutz schützt vor zu starker Sonneneinstrahlung und sorgt für ein optimales Raumklima – so bleibt Ihr Arbeitsplatz stets hell und gleichzeitig angenehm temperiert. Für Ihre Fahrzeuge steht eine Tiefgarage zur Verfügung, die Ihnen und Ihren Kunden oder Mitarbeitern bequeme und sichere Parkmöglichkeiten bietet.
Die Lage der Immobilie ist unschlagbar: Dank exzellenter Verkehrsanbindung mit Bus, U-Bahn, Straßenbahn und Bahnhof erreichen Sie Ihr Büro schnell und unkompliziert – perfekt für Pendler und Kunden. Zudem befinden sich in unmittelbarer Nähe zahlreiche wichtige Einrichtungen wie Ärzte, Apotheken, Kliniken, Schulen, Kindergärten sowie die Universität. Auch für die tägliche Versorgung ist gesorgt: Supermärkte und Bäckereien sind fußläufig erreichbar.
Diese Bürofläche verbindet optimale Infrastruktur mit einem ansprechenden Arbeitsumfeld und bietet Ihnen die besten Voraussetzungen, um erfolgreich zu arbeiten und zu wachsen. Nutzen Sie diese Chance und sichern Sie sich Ihren neuen Standort in 1130 Wien – Ihr Business verdient den besten Platz! Kontaktieren Sie uns noch heute für weitere Informationen und eine Besichtigung.