Zurück zur Suche
Miete
1130 Wien,Hietzing, Wien

TOP LAGE: MODERNE BÜROFLÄCHEN IM EKAZENT HIETZING

8.642,16 €
Büro / Praxis · Bürofläche
Objekt auf einen Blick
Typ Büro / Praxis · Bürofläche
Verfügbar nach Ausbau
Makler-ID 1609/47009 Immosearch-ID 018343

Preise

Miete 8.642,16 €
Gesamtmiete netto 8.642,16 €
Gesamtbelastung netto 8.642,16 €
Summe Miete netto 7.561,89 €
Betriebskosten netto 1.080,27 €
Maklerprovision 3 Bruttomonatsmieten zzgl. 20% USt.

Immobiliendetails

VermarktungsartMiete
ObjektartBüro / Praxis
UnterobjektartBürofläche
Ort1130 Wien,Hietzing, Wien
Verfügbar abnach Ausbau
StatusAktiv

Weitere Angaben

Alter Neubau
Erschließung Voll erschlossen
Boden Doppelboden
Befeuerung Luftwp
Fahrstuhl Personenaufzug
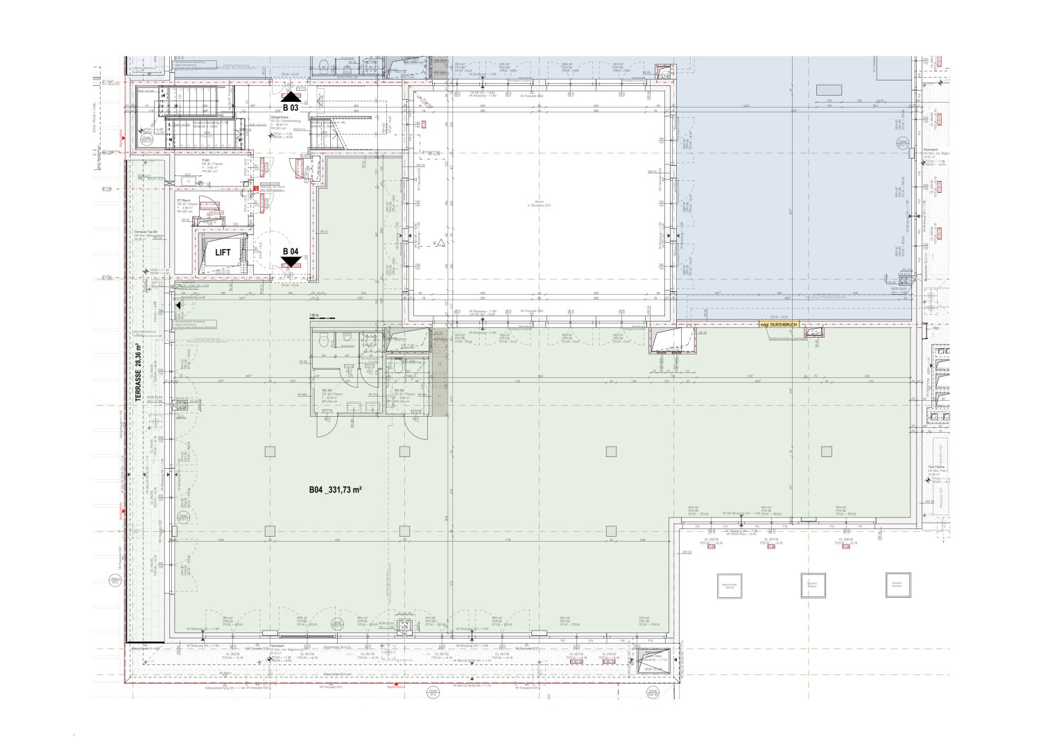
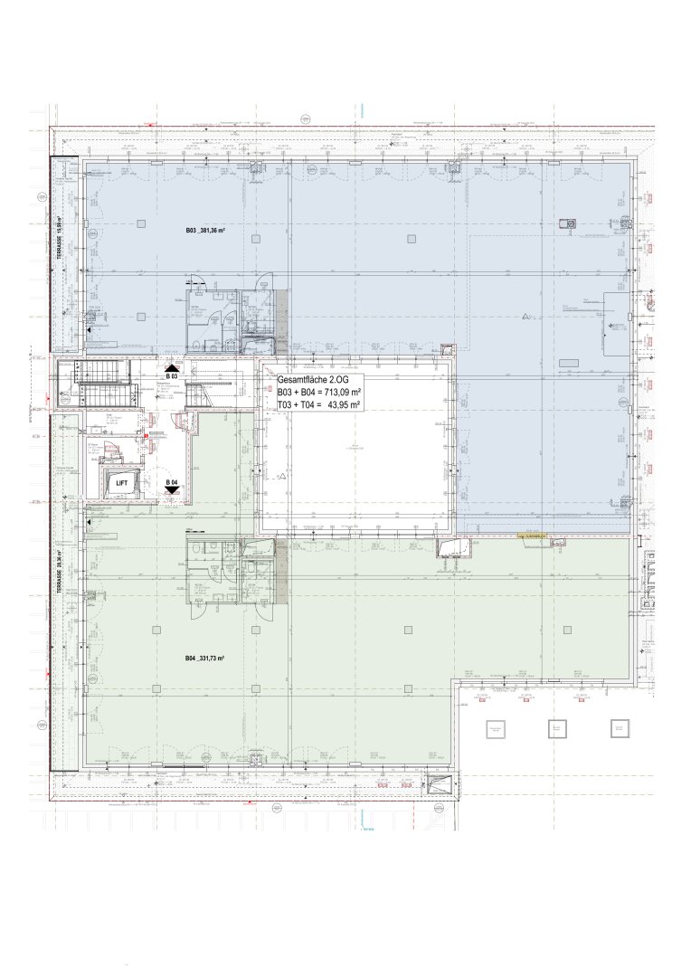
Balkon/Terrasse 28.36
Etage 2. Etage
Politischer bezirk Wien 13., Hietzing
Sub objektart id 61
Sub objektart name Bürofläche
Terrassen flaeche 28.36

Beschreibung