BAULAND vermietet einen Geschäftsraum mit 219,00 m² (Kennzeichnung: P9), der im Erdgeschoss des Einkaufszentrums "Importanne" gelegen ist, im zentralen kommerziellen und kulturellen Zentrum Sarajevos.
Dieser multifunktionale Raum verfügt über einen offenen Grundriss mit hohen Decken und großen Glasportalen, die sowohl nach innen als auch nach außen gerichtet sind. Diese Raumaufteilung ermöglicht es dem Mieter, das Interieur flexibel an die eigenen Bedürfnisse und den Geschäftszweck anzupassen.
Der Raum ist an Wasser angeschlossen und mit zwei Toiletten ausgestattet. Er eignet sich für verschiedene Tätigkeiten wie Dienstleistungen, Einzelhandel, Bürotätigkeiten, Gastronomie ohne Küche sowie für Franchise-Marken, die eine hohe Besucherfrequenz erfordern. Es ist zu beachten, dass der Raum nicht für gastronomische Aktivitäten geeignet ist, da keine Küche oder Schornstein für die Lebensmittelzubereitung vorhanden sind.
Das Importanne Centrum umfasst drei Etagen und eine Fläche von mehr als 15.000 m² mit vielfältigen Angeboten. Im Erdgeschoss befinden sich bekannte Modemarken, Kosmetikgeschäfte, Geschäfte für Modeaccessoires und Ausstattung, ein Friseursalon, eine Sparkasse-Filiale sowie gastronomische Einrichtungen. Im Untergeschoss sind Supermärkte, Technik-, Spielzeug-, Bekleidungs-, Nahrungsergänzungsmittel-, Haushaltswaren- und Dekorationsgeschäfte sowie Bereiche für Gaming und schnelle, gesunde Verpflegung untergebracht.
Den Besuchern stehen Parkplätze mit einer Kapazität von 425 Stellplätzen auf den Ebenen -2, -3 und -4 zur Verfügung.
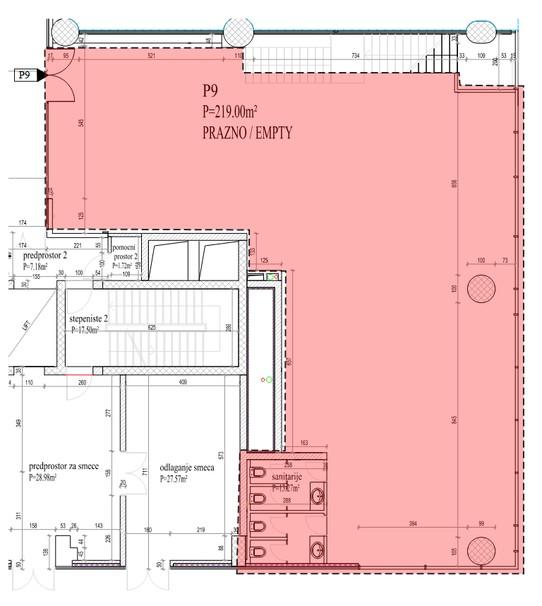
Für weitere Informationen zum Raum, Betriebskosten, Mietpreis sowie zur Terminvereinbarung für eine Besichtigung kontaktieren Sie uns bitte telefonisch unter +387 62 300 402 (Viber/WhatsApp) oder per E-Mail an info@bauland.ba. Der Grundriss des Geschäftsraums ist im Anschluss an diese Anzeige verfügbar.
Wir möchten Ihnen den bestmöglichen Service bieten und stehen Ihnen jederzeit für Ihre Fragen zur Verfügung.
BAULAND izdaje poslovni prostor površine 219,00 m² (oznaka: P9), smješten u prizemlju tržnog centra "Importanne", u samom komercijalnom i kulturnom središtu Sarajeva.
Ovaj višenamjenski prostor raspolaže otvorenim tlocrtom s visokim stropovima i velikim staklenim portalima, orijentisanim kako prema unutrašnjosti centra, tako i prema vani. Takva prostorna dispozicija omogućava zakupcu fleksibilno uređenje interijera u skladu s vlastitim potrebama i namjenom poslovanja.
Prostor posjeduje priključak vode i opremljen je s dva toaleta. Pogodan je za različite tipove djelatnosti poput uslužnih djelatnosti, maloprodaje, kancelarijskog poslovanja, ugostiteljstva bez kuhinje, te za franšizne brendove koji zahtijevaju visoku frekvenciju posjetilaca. Napominjemo da prostor nije pogodan za restoransku djelatnost jer ne sadrži kuhinju niti dimnjak za pripremu hrane.
Importanne Centar obuhvata tri etaže i više od 15.000 m² površine s raznovrsnim sadržajima. Na prizemlju se nalaze poznati modni brendovi, prodavnice kozmetike, modnih dodataka i opreme, frizerski salon, poslovnica Sparkasse banke te gastronomski objekti. U suterenu su smještene samoposluga, prodavnice tehnike, igračaka, odjeće, dodataka prehrani, kućne opreme i dekoracija, kao i zona za gaming te sadržaji za brzu i zdravu okrjepu.
Posjetiteljima je na raspolaganju parking s kapacitetom od 425 mjesta na etažama -2, -3 i -4.
Za sve dodatne informacije o prostoru, režijskim troškovima i cijeni najma, kao i za dogovor oko termina obilaska, slobodno nas kontaktirajte na broj telefona +387 62 300 402 (Viber/WhatsApp), ili putem e-mail adrese info@bauland.ba. Tlocrt poslovnog prostora dostupan je u nastavku oglasa.
Želimo Vam pružiti najbolju moguću uslugu, stoga smo uvijek spremni odgovoriti na Vaša pitanja.