Zum Verkauf gelangt eine attraktive 5-Zimmer-Maisonettewohnung auf zwei Ebenen (Erdgeschoss und Obergeschoss) in ruhiger Wohnlage der Ullreichgasse im 22. Bezirk.
Die Wohnung befindet sich in einer gepflegten Wohnhausanlage aus dem Jahr ca. 1996 und überzeugt durch ihre familienfreundliche Raumaufteilung sowie großzügige Außenflächen.
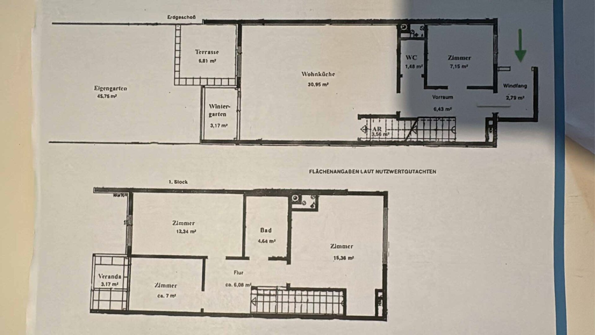
Die Wohnung erstreckt sich über zwei Ebenen und bietet viel Platz für Familien oder alle, die Wohnen und Arbeiten gut kombinieren möchten.
Erdgeschoss
Helle Wohnküche mit ca. 30,95 m² und direktem Zugang zu den Außenflächen
Zimmer mit ca. 7,15 m²
Vorraum ca. 6,43 m²
Separates WC
Abstellraum innerhalb der Wohnung
Wintergarten
Terrasse
Zugang zum großzügigen Eigengarten
Obergeschoss
Drei gut geschnittene Zimmer
Flur
Badezimmer
Veranda
Wohnfläche (Innenfläche inkl. Abstellraum): ca. 96–97 m²
Außenflächen gesamt: ca. 58,9 m², bestehend aus:
Eigengarten
Terrasse
Wintergarten
Veranda
(Außenflächen werden gemäß gängiger Praxis separat ausgewiesen und nicht voll zur Wohnfläche gerechnet.)
Parkett- und Fliesenböden
Küche vorhanden (nachträglich eingebaut)
Badezimmer mit allem drum und dran
Beheizung über Heizkörper
Kunststofffenster (Originalausstattung)
Einlagerungsraum vorhanden
Ein Tiefgaragenstellplatz ist der Wohnung zugeordnet und im Eigentum.
Der Stellplatz ist separat im Grundbuch ausgewiesen.
Die Wohnung liegt in einer ruhigen Wohngegend der Donaustadt und bietet gleichzeitig eine sehr gute Infrastruktur.
Einkaufsmöglichkeiten, Schulen, Kindergärten sowie öffentliche Verkehrsanbindungen sind bequem erreichbar. Grünflächen und Freizeitangebote befinden sich ebenfalls in der näheren Umgebung.
Baujahr Wohnhaus: ca. 1996
Wohnungseigentum
5 Zimmer
Maisonette (EG + OG)
Eigengarten, Terrasse, Wintergarten & Veranda
Tiefgaragenstellplatz im Eigentum
Beziehbar: nach Vereinbarung
Kontakt:
Herr Aldin Dacic
Konz. Immobilienmakler & BM (BGT)
Geschäftsführer der Hada Real GmbH
Pappenheimgasse 47 Top 1–2, 1200 Wien
🌐 www.hada-real.eu
📞 +43 664 10 20 156