PROVISIONSFREI für den Käufer!
Alle verfügbaren Wohnungen finden Sie auf unserer Homepage unter www.mast-immo.at. Um Ihre Suche zu erleichtern, steht Ihnen auf unserer Projektseite www.anderschanze25.at ein Wohnungsnavigator zur Verfügung, der Ihnen hilft, sich einen Überblick über die Lage der einzelnen Wohnungen innerhalb des Komplexes zu verschaffen.
"An der Schanze 25" - Ihr neues Zuhause, Investment und Vorsorge
Das beeindruckende und exklusive Projekt befindet sich im"Quartier Donaufeld" im beliebten 21. Wiener Gemeindebezirk und repräsentiert einen einzigartigen Gebäudekomplex aus vier Bauteilen mit insgesamt 212 exklusiv ausgestatteten Wohnungen.
Zum Verkauf gelangen 58 Wohnungen in Bauteil A, 45 Wohnungen in Bauteil B und 64 Wohnungen in Bauteil D.
EIGENGRUND! - KEINE PACHT!
Die voraussichtliche Fertigstellung ist im Herbst 2026 geplant.
Highlights der Liegenschaft:
Lage: Auto adé
Sollten Sie kein Fahrzeug besitzen, ist das bei dieser Adresse kein Hindernis. Zahlreiche Nahversorger, Dinge des täglichen Bedarfs und selbst das beliebte Donauzentrum mit über 262 Shops, Restaurants und Kino befinden sich unmittelbarer Nähe der Liegenschaft. An heißen Sommertagen lädt die, über einen Grünstreifen verbundene, Alte Donau zum Verweilen ein!
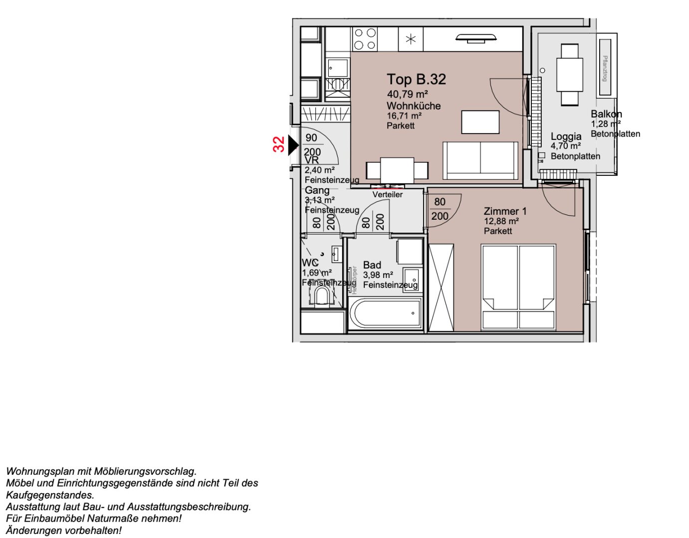
Details Wohnung Bauteil B Top 32:
Die Wohnung befindet sich im 4. Liftstock und verfügt über 40,79 m² Wohnfläche + eine 5,98 m² große Freiflächen.
Die Wohnung gliedert sich wie folgt:
Der Kaufpreis beträgt für Anleger € 272.000 Netto zzgl. 20% USt. Der Preis für Eigennutzer beträgt 295.000 €
Auf unserer Homepage finden Sie eine Übersicht zu allen verfügbaren 2-Zimmer-Wohnungen sowie nähere Details dazu.