Zurück zur Suche
Kauf
2322 Zwölfaxing, Raiffeisenstraße, Niederösterreich

BELAGSFERTIG Moderne und großzügige Doppelhaushälfte!

599.000 €
Haus · Doppelhaushälfte
Objekt auf einen Blick
Typ Haus · Doppelhaushälfte
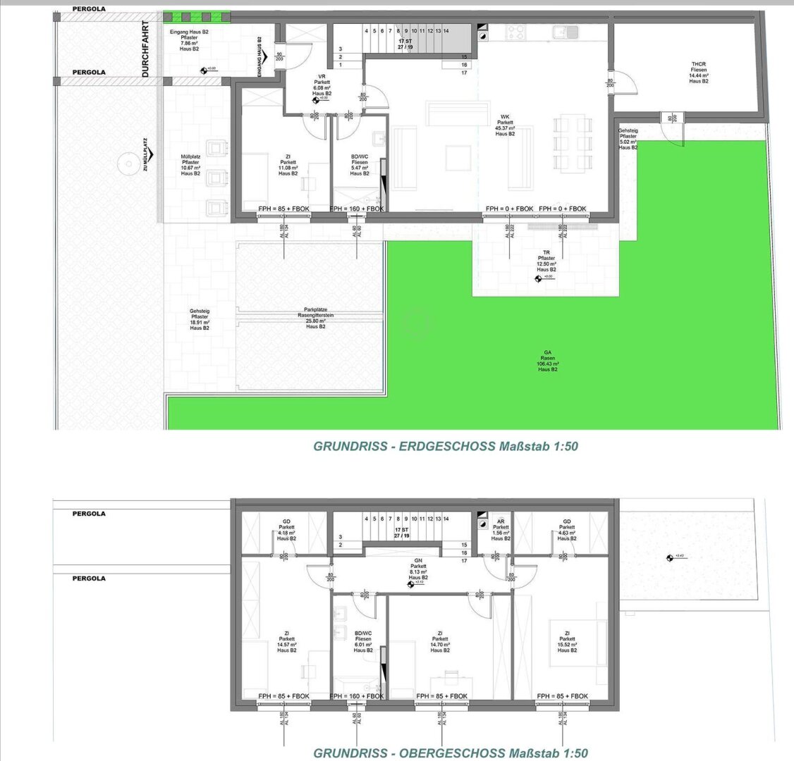
Zimmer 5
Wohnfläche 151,72 m²
Grundstück 354,60 m²
Verfügbar an sofort
Makler-ID 7618/936 Immosearch-ID 018454

Preise

Kaufpreis 599.000 €
Maklerprovision 3% des Kaufpreises zzgl. 20% USt.
Grunderwerbsteuer 3.5%
Grundbucheintragungsgebühr 1.1%

Immobiliendetails

VermarktungsartKauf
ObjektartHaus
UnterobjektartDoppelhaushälfte
Zimmer5
Wohnfläche151,72 m²
Grundstück354,60 m²
Ort2322 Zwölfaxing, Raiffeisenstraße, Niederösterreich
Verfügbar aban sofort
StatusAktiv

Weitere Angaben

Zustand Erstbezug
Alter Neubau
Bad Dusche
Heizungsart Fußbodenheizung
Befeuerung Luftwp
Bauweise Massivbau
Badezimmer 2
Separate WC 2
Balkon/Terrasse 12.5
Gartenfläche 106.43
Anzahl abstellraum 2
Belagsfertig 1
Kaufpreis 599000
Kaufpreisbrutto 599000
Politischer bezirk Bruck an der Leitha
Stellplatz flaeche 25.8
Sub objektart id 18
Sub objektart name Doppelhaushälfte
Terrassen flaeche 12.5

Beschreibung