Sie wollen Ihren Wohntraum verwirklichen aber ohne nervenaufreibendem Baustress? Dann haben wir genau das Richtige für Sie.
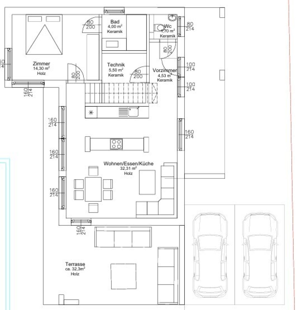
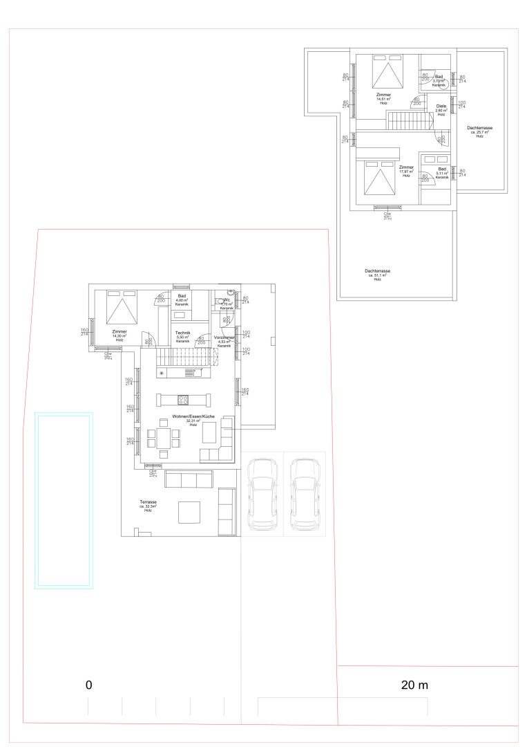
Hier bietet sich der ideale Ort um all Ihre Wohnträume zu erfüllen - Stilvolles Einfamilienhaus mit einer Grundstücksfläche von rund 525m² und einer Wohnfläche von ca. 126m². Das Bauwerk wird erst nach Kauf gemäß Planung errichtet und bietet somit die Möglichkeit, individuelle Wünsche und Anpassungen in der Ausführung zu berücksichtigen.
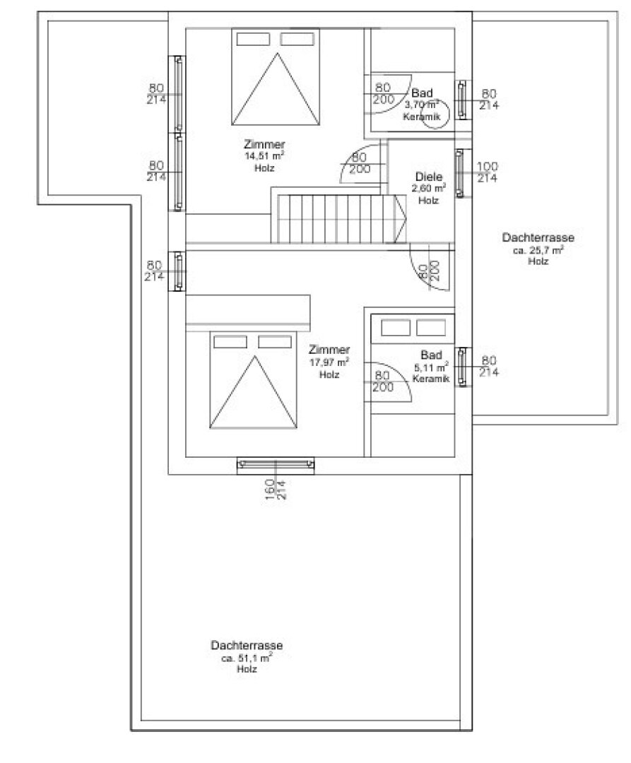
Das Einfamilienhaus begeistert vor allem aufgrund eines gut durchdachten Raumkonzepts, großzügigen Glasfronten und moderner Niedrigenergiebauweise in Holz - Fertigteilkonstruktion. Die ca. 50m² Dachterrasse bietet zahlreiche Sonnenstunden in absoluter Ruhelage zum Genießen und entspannen.
Ausstattung & Highlights:
> Vollausgestattete Wohnküche mit Kochinsel
> Großzügige Fensterfronten für viel Tageslicht
> Moderne Kunststofffenster mit Dreifachverglasung
> Fußbodenheizung in allen Wohnräumen inkl. WC und Bad
> Elektrisch gesteuerte Raffstores bzw. Rollläden in den Haupträumen
> Niedertemperaturheizung mittels Wärmepumpe
> Optionale passive Bauwerkskühlung im Sommer
> Energieeffiziente Niedrigenergiebauweise
> Fertigteilbauweise mit hochwertiger Bauqualität
> Beheizbarer Swimmingpool 8 × 4 m aus Beton gegen Aufpreis
Besondere Highlights:
Da das Haus erst nach Kauf errichtet wird, besteht die exklusive Möglichkeit den Grundriss sowie Ausstattung und Materialien in Abstimmung mit dem Bauträger individuell zu adaptieren und gestalten zu können. Die Zahlung des Kaufpreises erfolgt etappenweise laut Baufortschritt, dies bietet Käufern maximale Flexibilität bei der Gestaltung und Zahlung ihres zukünftigen Eigenheims. Ein weiterer Pluspunkt ist, dass sich die 3,5% Grunderwerbssteuer nur auf den Grundstückspreis berechnet und somit bereits eine erhebliche Ersparnis bei den Kaufnebenkosten erzielt wird.
Kosten im Überblick:
Kaufpreis Eigengrund: € 299.900, -
Kaufpreis Haus schlüsselfertig: 309.800€
Kaufpreis Gesamt inkl. Küche: € 609.700, -
zzgl. An-/ und Aufschlussgebühren: € 20.000, -
zzgl. Betriebskosten: ca. € 1,50 / m²
Neugierig geworden? Dann nehmen Sie heute noch Kontakt auf und lassen sich bei einem persönlichen Beratungsgespräch von den zahlreichen Vorteilen dieser Immobilie überzeugen.
Für weitere Fragen und Details steht Ihnen Frau Trenk unter +43 677 61510 881 gerne jederzeit zur Verfügung.
Noch nichts gefunden? Wir informieren Sie über geeignete Immobilienangebote noch vor allen anderen. Legen Sie jetzt Ihren individuellen Suchagenten unter folgendem Link an.
Wir schicken Ihnen passende Immobilien exklusiv vorab zu Suchagent anlegen - https://atrium-global-investment.service.immo/registrieren/de
Noch nichts gefunden? Wir informieren Sie über geeignete Immobilienangebote noch vor allen anderen.
Legen Sie jetzt Ihren individuellen Suchagenten unter folgendem Link an. Wir schicken Ihnen passende Immobilien exklusiv vorab zu.
Suchagent anlegen - https://atrium-global-investment.service.immo/registrieren/de