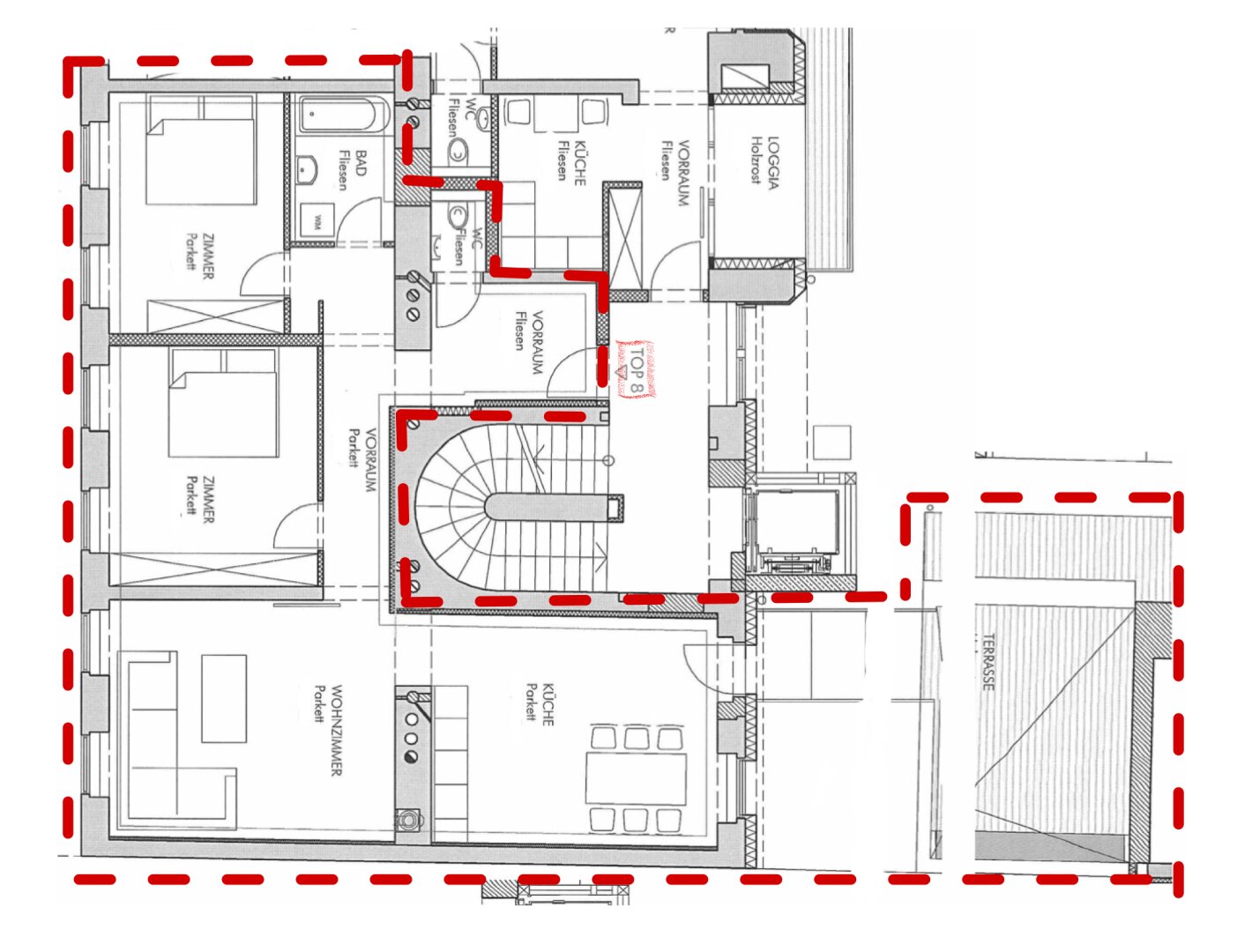
ZUM VERKAUF GELANGT diese sonnige 4 ZIMMER WOHNUNG mit ANGESCHLOSSENER DACHTERRASSE an der Grenze 1060 zu 1150
RAUMAUFTEILUNG & HIGHLIGHTS
WOHNATMOSPHÄRE - AUSSTATTUNG UND DETAILS
Links Rundgang zum Film: Rundgang Filmlink
Links Einrichtungsbeispiel Visualisierung: Link Visualisierung Einrichtungsbeispiel
Das ursprüngliche Bestandsgebäude wurde ca 1877 errichtet. 2016/17 wurde das Haus entkernt und von Grund auf saniert, Hoftrakt und Dachgeschoß ausgebaut. Herbst bis ins Frühjahr 2025/2026 erfolgten umfassende Sanierungsarbeiten. Der Straßentrakt zeigt sich von seiner Altwiener Seite und weist eine wunderschöne, strukturierte Fassade auf, die neuen Teile im Dach und im Hof sind modern gestaltet und ergänzen das alte Ensemble. Insgesamt befinden sich 11 Wohnungen im Haus, es herrscht eine familiäre und freundliche Atmosphäre. Die verkaufsgegenständliche Wohnung wurde 2026 zuletzt erneuert.
Energiekoeffizient und Einsatz alternative Energien kommen nicht zu kurz. Das Gebäude wurde im Zuge der Generalsanierung thermisch saniert, alle Fenster sind doppelt verglaste Holz/Alufenster. Im Keller befindet sich die zentrale Heizanlage und Warmwasseraufbereitung, am Dach gibt es zusätzlich Solarthermie, die Warmwasser in das hauseigene System einspeist. Im Erdgeschoß straßenseitig befindet sich ein Fahrrad- und Kinderwagenabstellraum zur allgemeinen Nutzung der Hausgemeinschaft.
Noch nichts gefunden? Wir informieren Sie über geeignete Immobilienangebote noch vor allen anderen.
Legen Sie jetzt Ihren individuellen Suchagenten unter folgendem Link an. Wir schicken Ihnen passende Immobilien exklusiv vorab zu.
Suchagent anlegen - https://zeitwert-immobilien.service.immo/registrieren/de