Die Liegenschaft befindet sich in gepflegtem Allgemeinzustand und ist sowohl für privates Wohnen als auch für eine gemischte gewerbliche Nutzung interessant. Das Grundstück ist von zwei Seiten erschlossen – direkt über die Josef-Wilberger-Straße sowie über eine Zufahrt von Süden (Servitut über Haller Straße).
Das Objekt ist derzeit vermietet, mit gesicherter Vorauszahlung bis 2026, wodurch Planungssicherheit für künftige Nutzung oder Entwicklung gegeben ist.
Zentrale Lage in Innsbruck
Flexible Nutzungsmöglichkeiten (Wohnen/Gewerbe)
Solide Bausubstanz mit Entwicklungspotenzial
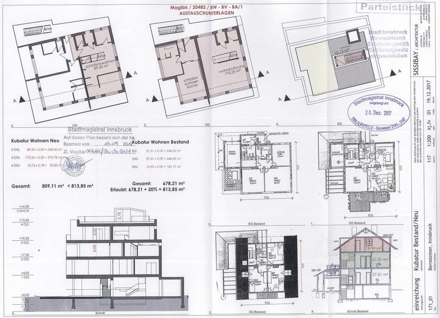
Grundstücksfläche: ca. 661 m²
Bestandsgebäude: Baujahr 1930, Generalsanierung 1976
Nutzfläche: ca. 227,6 m²
Betriebskosten (1. Abrechnung wird erst erstellt)
geschätzt: 424 EUR monatlich / laut Betriebskostenspiegel 2025 € 2,52 p.m²
Die angeführten Angaben und Informationen dienen lediglich als unverbindliche Vorinformation und bleiben somit ohne jede Gewähr.
Hinweis gemäß Energieausweisvorlagegesetz: Ein Energieausweis wurde vom Eigentümer bzw. Verkäufer, nach unserer Aufklärung über die generell geltende Vorlagepflicht, sowie Aufforderung zu seiner Erstellung noch nicht vorgelegt. Daher gilt zumindest eine dem Alter und der Art des Gebäudes entsprechende Gesamtenergieeffizienz als vereinbart. Wir übernehmen keinerlei Gewähr oder Haftung für die tatsächliche Energieeffizienz der angebotenen Immobilie.