Ein durchdachter Hingucker: Ihre Freunde werden Sie beneiden!
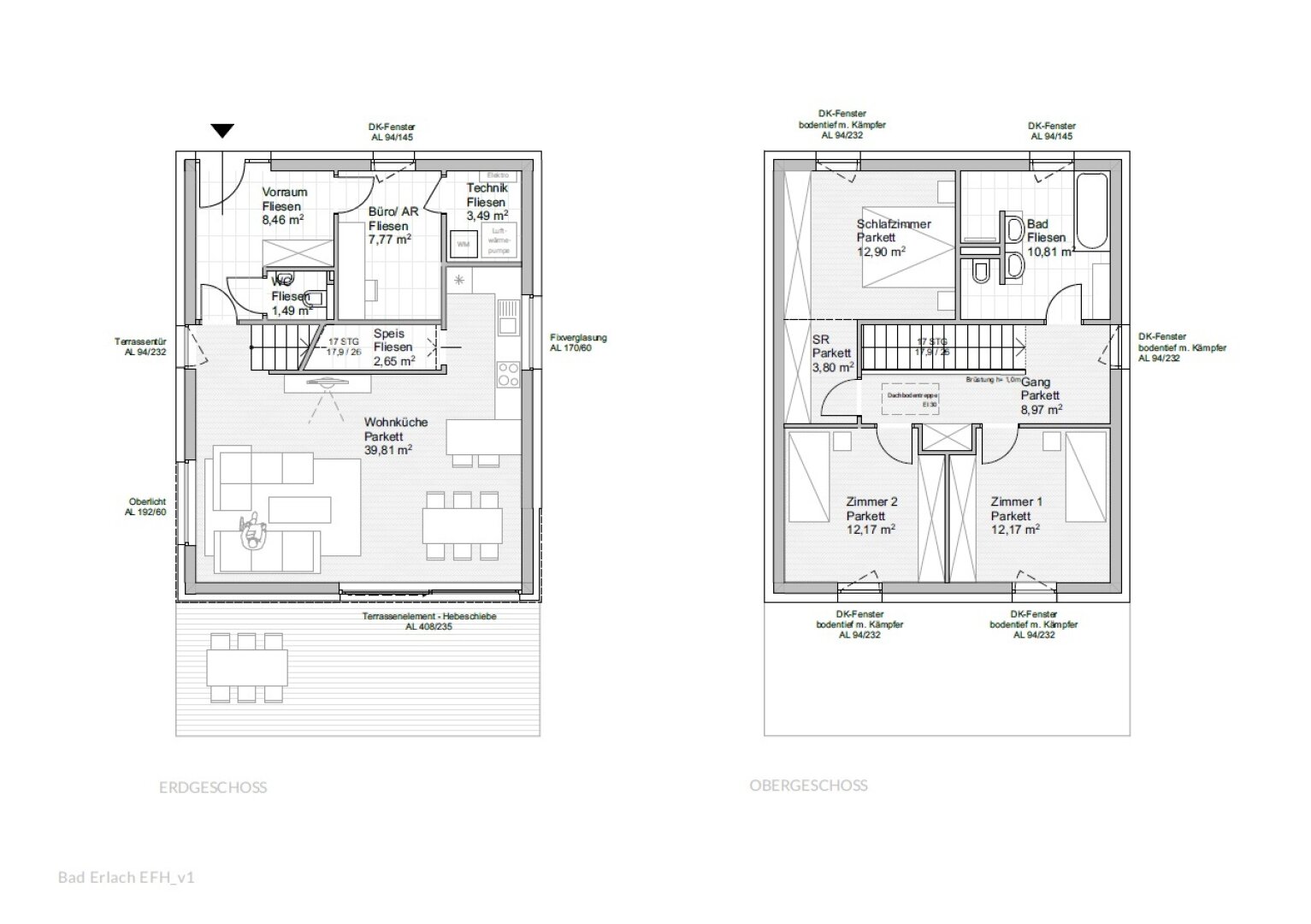
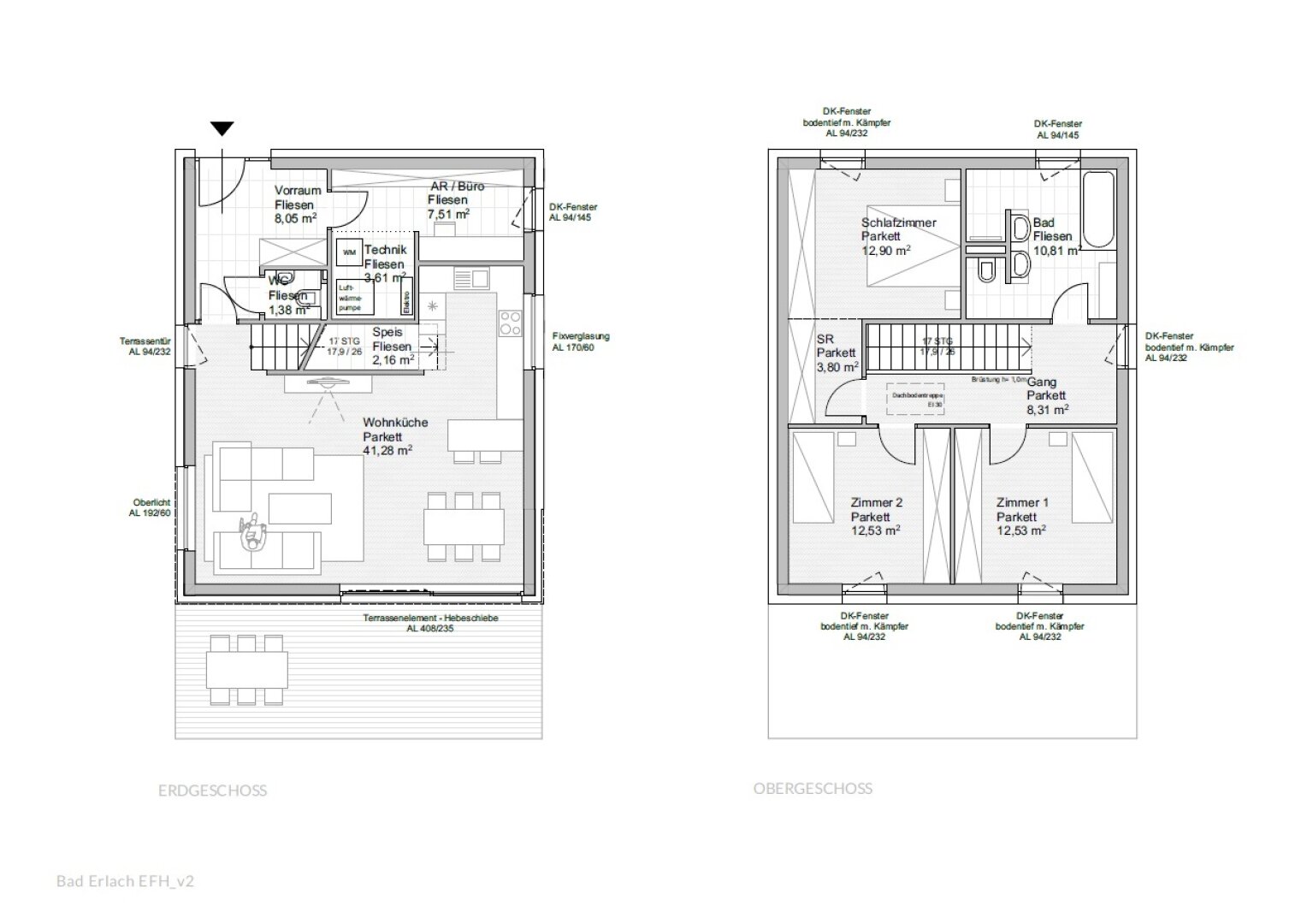
In rund 125 m² Wohnfläche können Sie sich ausbreiten und das moderne Wohngefühl und die lichtdurchfluteten Räume genießen. Lassen Sie sich durch die zahlreichen bereits gebauten Grundrisse inspirieren und passen Sie die Innenwände nach Ihren Wünschen und Bedürfnissen an. Der Blick in das Obergeschoss verrät, dass dieses ganz ohne Dachschrägen auskommt und dadurch in allen Räumen eine überdurchschnittliche Raumhöhe genutzt werden kann. Bei der Planung Ihres Niedrigenergiehauses achten wir, nicht nur auf die Energieeffizienz, um die Heizkosten gering zu halten, sondern auch darauf jeden Quadratmeter sinnvoll zu nutzen. Dadurch können wir unnötige Flächen und in weiterer Folge Baukosten verhindern und Ihnen im Alltag kurze Wege ermöglichen.
Ihr Haus im Überblick!
Grundstücksgröße: ca. 393 m² | Wohnfläche: ca. 125 m²
Erdgeschoss: großes Wohn- und Esszimmer mit offener Küche, Speis, Büro, Technikraum, WC, Vorraum
Obergeschoss: Schlafzimmer, zwei Kinderzimmer, Badezimmer inkl. WC
Heizung: Fußbodenheizung über Luftwärmepumpe | HWB: 35 kwh/m²a
Der Garten und die Terrasse bieten viel Platz für Spiel und Spaß. Entspannen Sie, lassen Sie die Seele baumeln und genießen Sie Ihr Paradies.
Das ist drinnen: Damit können Sie rechnen!
Hier ein kleiner Einblick, alles weitere finden Sie in unserem Exposé beziehungsweise kann unser Projektleiter beantworten!
Ade lästige Suche nach Steckdosen und tapsen im Dunkeln! In Ihrem Haus sind die Lichtschalter und Steckdosen alle am richtigen Platz.
Wir haben in die Zukunft gedacht! Es werden zahlreiche Leerverrohrungen zur nachträglichen Installation in Ihrem Haus eingebaut.
Zögern Sie nicht! Verschaffen Sie sich mit dem Exposé einen ersten Eindruck Ihres neuen Hauses und vereinbaren Sie anschließend ein unverbindliches Beratungsgespräch. Bereits über 30 Familien haben sich für unsere Häuser entschieden - werden Sie auch Teil der REGIOWERT Familie.
KAUFPREIS: EUR 589.000,-- belagsfertig
inklusive aller Anschlusskosten