Wir freuen uns, Ihnen helle Schulungs-/Seminarräume direkt bei der U1 Station Kagraner Platz anbieten zu können.
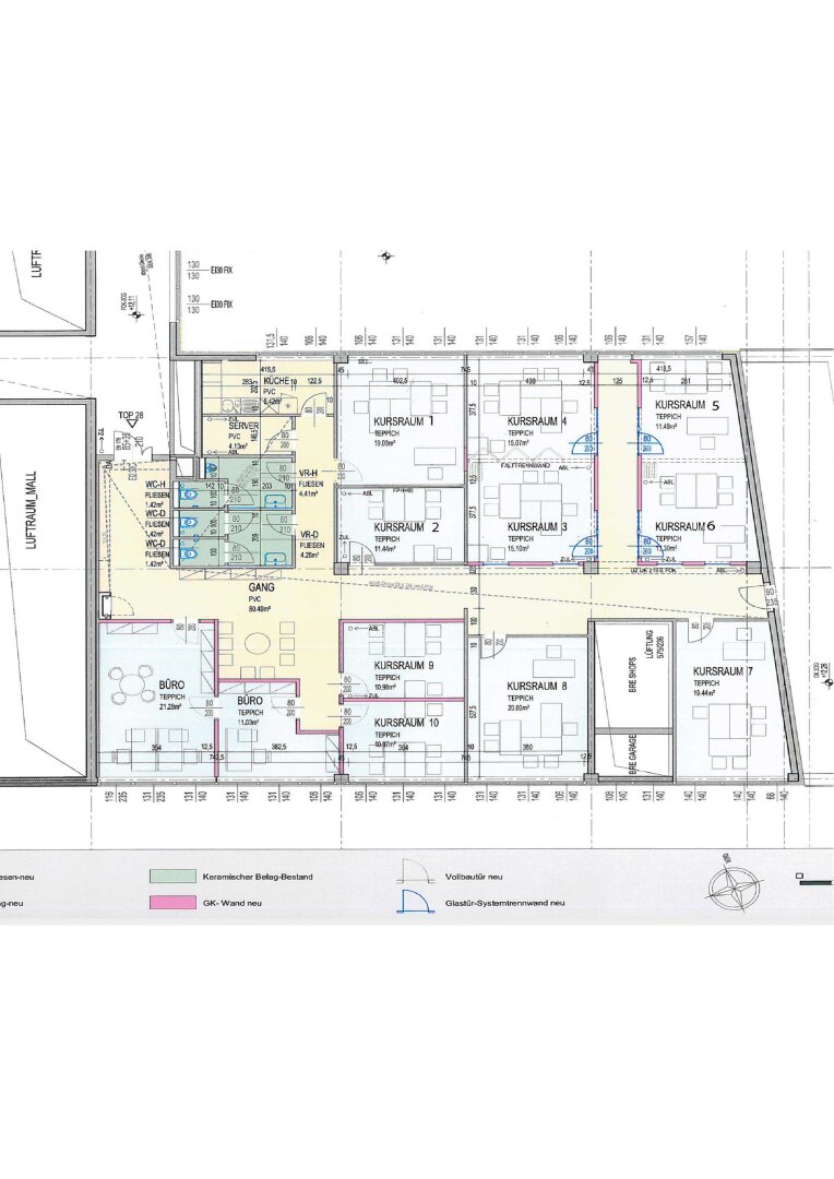
Die Immobilie besteht aus insgesamt 10 unterschiedlich großen Räumen mit einer Fläche von rund 10 bis 30 Quadratmetern. Jeder Raum ist vollständig klimatisiert und verfügt über große Fenster, die für eine hervorragende natürliche Beleuchtung sorgen und somit ein angenehmes Lern- und Arbeitsumfeld schaffen.
Die Räume sind mit modernen Möbeln und Glaswänden ausgestattet, die eine effektive Nutzung des Platzes ermöglichen. Die Raumgrößen sind so gestaltet, dass sowohl Einzel- als auch Gruppentrainings möglich sind.
Ein weiterer Vorteil der Schulungsräume sind die die Mitbenutzung von Küche, Toilettenanlagen (Damen und Herren getrennt), WLAN, Kopierer/Drucker und Garderobe. Diese Räumlichkeiten sind auf dem neuesten Stand der Technik und bieten alle notwendigen Annehmlichkeiten für einen komfortablen Aufenthalt. Die Räumlichkeiten sind barrierefrei und mit einem Fahrstuhl ausgestattet, um einen reibungslosen Zugang für Personen mit eingeschränkter Mobilität zu gewährleisten. Darüber hinaus befindet sich im Haus eine Tiefgarage.
Bitte beachten Sie, dass die Nutzung der Räumlichkeiten aufgrund bestimmter Einschränkungen begrenzt ist. Die Räume können von Montag bis Freitag in der Zeit von 07:00 Uhr bis 13:00 Uhr genutzt werden. An Samstagen und Sonntagen stehen die Räumlichkeiten ganztägig zur Verfügung. In den Monaten Juli und August sind die Räumlichkeiten nur am Nachmittag zugänglich.
Die Immobilie eignet sich ideal für Bildungs- und Schulungseinrichtungen sowie für Unternehmen, die Räumlichkeiten für Schulungen, Seminare oder Meetings benötigen. Das flexible Raumangebot bietet verschiedene Optionen für unterschiedliche Anforderungen.
Kurz gesagt, diese Immobilie bietet alles, was Sie für ein erfolgreiches Training oder eine effektive Geschäftsveranstaltung benötigen.
Dieser Schulungs-/Seminarraum Nr. 10 hat ein Ausmaß von 10,97 m² und ist mit einem großen Tisch, 5 Stühlen sowie mit einer Pinnwand ausgestattet.
Noch nichts gefunden? Wir informieren Sie unverbindlich über geeignete Immobilienangebote noch vor allen anderen.
Legen Sie jetzt Ihren individuellen Suchagenten unter folgendem Link an. Wir schicken Ihnen passende Immobilien exklusiv vorab zu.
Suchagent anlegen - https://immo-kubicek.service.immo/registrieren/de
Ihre Immobilie – unsere Kunden: Perfekte Vermittlung seit über 90 Jahren.
Wir bringen seit mehr als 90 Jahren erfolgreich Immobilienbesitzer und Käufer/Mieter zusammen. Ob Haus, Grundstück oder Wohnung – für unsere 1.300 vorgemerkten Kunden suchen wir derzeit Immobilien in Wien und Niederösterreich.
Als stolzer Träger des IMMY-Qualitätspreises stehen wir für höchste Servicequalität und freuen uns darauf, Sie persönlich zu beraten.
Kontaktieren Sie uns noch heute!